Komfortable 122 m² auf einer Etage mit Aussicht, Aufzug und TG
Objektstatus:
Kaltmiete:
Miete TG:
Nebenkosten:
Provison:
Verfügbar.:
Balkon:
Endenergieverbrauch
Energieeffizienzklasse
vermietet
00272
1.040,00 €
60,00 €
380,00 €
provisionsfrei
73207 Plochingen
4,5-Zi.-Mietwohnung
September 2022
1982
122,52 m²
4,5
2
Gaszentralheizung
Gas
Verbrauchssausweis
106 kWh/(m²*a)
D
Ausstattung
- Holzisolierglasfenster
- Rollläden
- EBK
- Vinyl-/Fliesenböden
- Duschbad
- Gäste-WC
- Abstellraum innerhalb der Wohnung
- Gaszentralheizung
- Verglaster Westbalkon
- Fernsicht
- Ostbalkon
- Abstellraum im UG
- Münzwaschautomat im UG
- Trockenraum im UG
- TG-Stellplatz
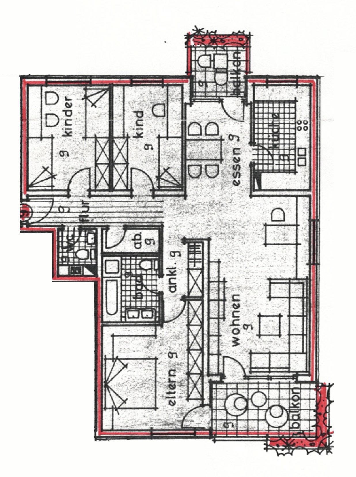
Objektbeschreibung:
Diese lichtdurchflutete 4,5-Zi.-Wohnung befindet sich in einem gepflegten Mehrfamilienhaus und steht ab dem 01.09.2022 frisch renoviert zum Einzug bereit. Der gelungene Grundriss bietet helle Räume und eine moderne, offene Wohnatmosphäre. So stehen neben 4,5 Zimmern ein Abstellraum, ein Ankleidebereich bzw. Garderobe, ein neuwertiges Duschbad und ein Gäste-WC zur Verfügung. Für den Aufenthalt im Freien sorgen zwei überdachte Balkone. Ein Balkon ist nach Süden und Westen mit Fernsicht zur Schwäbischen Alb und der andere nach Osten mit Blick ins Grüne ausgerichtet. Der Westbalkon verfügt über eine Verglasung, die Wintergartenfeeling verströmt, sich aber auch komplett öffnen und zur Seite schieben lässt.
Die Küche wurde rundum mit einer EBK ausgestattet und schafft reichlich Arbeitsfläche für gemeinsames Kochen und Backen. Auch die Waschmaschine findet hier Stellfläche.
Ein schönes Wohnambiente erzeugt der offen gestaltete Wohn-/Essbereich und stellt der Familie genügend Freiraum zur Verfügung.
Zur Wohnung gehören ein TG-Stellplatz und ein Abstellraum im UG
Lagebeschreibung:
Die Immobilie liegt im Plochinger Stadtteil Lettenäcker. Eine Bushaltestelle, ein Spielplatz, eine Bäckerei sowie ein kleiner Supermarkt sind in unmittelbarer Nähe, ein Kindergarten, eine Grundschule und das GARP Bildungszentrum ca. 350 m entfernt. Weiterführende Schulen und die Musikschule befinden sich in der Innenstadt und werden nach ca. 1,5 km erreicht. Der Bahnhof, der wichtigste Eisenbahnknotenpunkt im Landkreis Esslingen, befindet sich in ca. 1,8 km und das Stadtzentrum in ca. 1,3 km Entfernung. Die Buslinie 141 fährt im 30 Minuten-Takt über das Stadtzentrum innerhalb von 7 Minuten den Bahnhof an.
Plochingen kann mit einem abwechslungsreichen Freizeit- und Sportangebot aufwarten. Es stehen Sport- und Tennisanlagen, ein Kletterwald, eine Minigolfanlage, das Naherholungsgebiet Bruckenwasen, Radfahr- und Wanderwege, die Stadthalle für Konzert- und Theatervorstellungen sowie ein reges Vereinsleben zur Verfügung.
Umfangreiche Einzelhandels- und Dienstleistungsangebote machen Plochingen lebenswert. Der Standort Plochingen ist das östliche Tor zur Region Stuttgart mit Sitz vieler bekannter Unternehmen. Entsprechend gut ist die Infrastruktur von Plochingen. Neben Hausärzten garantieren viele Fachärzte eine umfangreiche medizinische Versorgung.
Durch die direkte Anbindung Plochingens an die B 10 und die B 313 wird Esslingen nach ca. 15 Minuten, Stuttgart nach ca. 29 Minuten und der Flughafen nach ca. 23 Minuten erreicht.
Sonstiges:
Bitte haben Sie Verständnis, dass nur Anfragen mit vollständiger Adress- und Telefonnummernangabe bearbeitet werden können.




























