Ca. 160,9 m² Gewerbefläche in B10-Nähe für Büro, Lager oder Archiv
Objektstatus:
Immo-ID.:
Kaltmiete:
Nebenkosten pauschal:
Warmmiete:
Kaution:
Provision für Mieter:
Verfügbar.:
Gesamtfläche ca.:
Räume:
WC mit Dusche:
Endenergieverbrauch Wärme:
Endenergieverbrauch Strom:
verfügbar
98428
800,00 €
500,00 €
1.300,00 €
3 MM
Provisionsfrei
73779 Deizisau
Büro-, Lager-, Archivräume
sofort
1982
160,9 m²
4
Ölzentralheizung
Öl
Verbrauchssausweis
26,2 kWh/(m²*a)
172,7 kWh/(m²*a)
Ausstattung
- Alu-Isolierglasfenster
- Abgehängte Decken inkl. Beleuchtung
- Einbauschränke
- Teppichboden
- Gefliestes WC mit Dusche
- 4 Räume
- Ölzentralheizung
- 1. OG
- Kein Fahrstuhl
Objektbeschreibung:
Diese hellen Gewerberäume befinden sich im 1. OG eines Lager-/Logistikgebäudes und eignen sich als Archiv-, Lager- oder Büroräume.
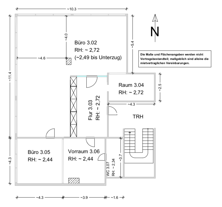
Auf ca. 160,9 m² verteilen sich ein großer L-förmig geschnittener Raum ca. 88,9 m², ein Eingangsbereich ca. 20,0 m², ein hell gefliestes WC mit Dusche ca. 5,9 m² und drei weitere Räume mit ca. 10,8 m², 16,8 m² und 18,5 m².
Der Zustand ist teilweise renovierungsbedürftig. Nach Absprache können Umbauten vorgenommen werden.
KFZ-Außenstellplätze werden nicht mitvermietet, können aber je nach Verfügbarkeit und Absprache genutzt werden.
Lagebeschreibung:
Deizisau ist eine Gemeinde mit 6.893 Einwohnern, liegt im Landkreis Esslingen und gehört zur Metropolregion Stuttgart, einer der stärksten Wirtschaftsregionen Europas. Die direkte Anbindung Deizisaus an die B10 und B313 gewährleistet eine schnelle Erreichbarkeit der A8 sowie des Flughafens Stuttgart. Diese verkehrsgünstige Lage macht Deizisau zu einem attraktiven Standort, sodass in Deizisau viele und auch namenhafte Unternehmen ansässig sind.
Die Gewebefläche befindet sich im westlichen Teil Deizisaus nahe der B10.
Entfernungen:
B10: 1,1 km
B313: 4,0 km
A8: 10 km
Stuttgart Zentrum: ca. 20 km
Esslingen Zentrum: ca 7 km
Göppingen Zentrum: ca. 25 km
Flughafen Stuttgart:: ca. 15 km
Sonstiges:
Auf die gesamte Miete fallen 19,00 % USt. an.
Bitte haben Sie Verständnis, dass nur Anfragen mit vollständiger Adress- und Telefonnummernangabe bearbeitet werden können.





















