Objektstatus:
Immo-ID.:
Kaltmiete:
Provision:
Verfügbar.:
Gesamtfläche ca.:
Gesamtfläche teilbar ca.:
Räume:
Räume mit Waschbecken:
WC:
Endenergieverbrauch Wärme:
Endenergieverbrauch Strom:
Vermietet
107184
Auf Anfrage
Provisionsfrei
73033 Göppingen
Büro-/Praxisräume
sofort
1899/1961
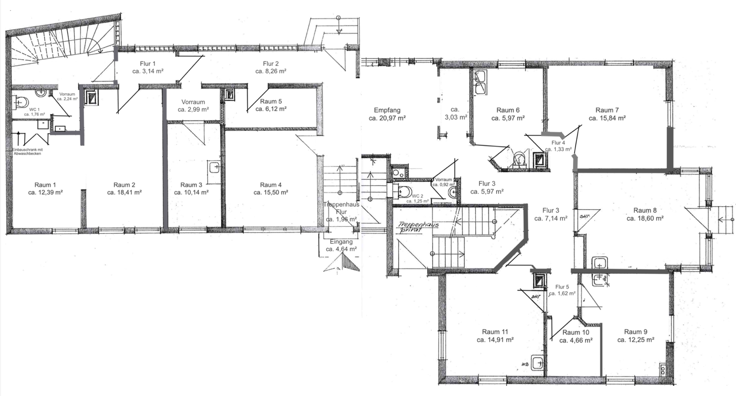
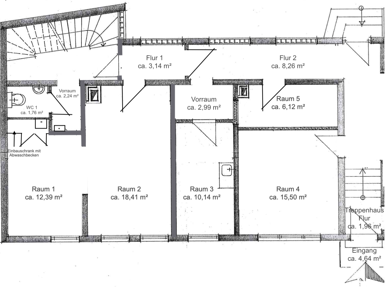
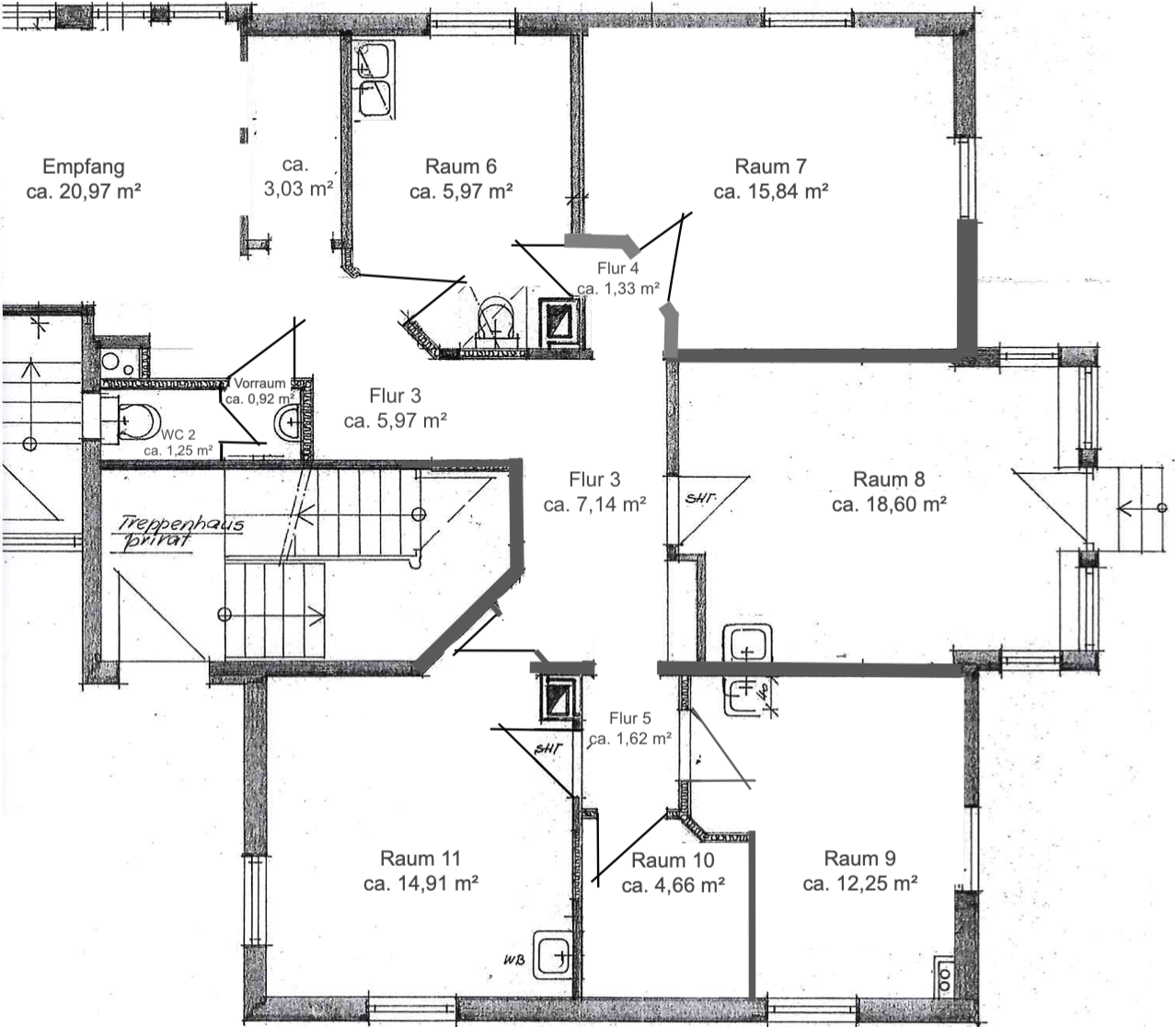
204,89 m²
111,94 m² und 92,95 m²
Empfang + 11
7
3
Gaszentralheizung
Gas
Verbrauchssausweis
220,1 kWh/(m²*a)
43,1 kWh/(m²*a)
Ausstattung
- Kunststoff-Isolierglasfenster
- Rollläden
- Einbauschrank mit Abwaschbecken
- Laminat, Fliesen
- Empfang + 11 Räume
- Teilbar in 111,94 und 92,95 m²
- 7 Räume mit Waschbecken
- 3 WC
- Gaszentralheizung
- Hochparterre
- Garten
- 2 KFZ-Außenstellplätze
- Evtl. weitere Parkplätze möglich
Objektbeschreibung:
Diese vielfältig nutzbaren Büro-/Praxisräume erstrecken sich über das gesamte EG (Hochparterre) eines Wohn-/Geschäftshauses mit wunderschönem Garten. Das Gebäude befindet sich in zentraler, gut sichtbarer Top-Lage an der Kreuzung Burgstraße/Marktstraße/Friedrich-Ebert-Straße.
Auf ca. 204.89 m² verteilen sich ein großzügiger Empfangsbereich, 11 Räume, davon 7 mit einem Waschbecken und 3 WC. Die Etage verfügt über 2 Eingänge sowie einen Ausgang in den Garten mit altem Baumbestand. Hier können die Pausen im Freien verbracht werden.
Eine Teilung der Fläche wäre problemlos möglich. So könnten die Räume 1 - 5 inkl. Flure und WC (ca. 92,95 m²) eine Einheit und die Räume 6 - 11 inkl. Flure und WC (111,94 m²) eine zweite Einheit bilden. Eine weitere Option wäre, die Räume einzeln zu mieten.
Der Zustand ist teilweise renovierungsbedürftig. Nach Absprache können Umbauten bei längerer Laufzeit des Mietvertrags vorgenommen werden. Von Seiten der Eigentümer besteht Investitionsbereitschaft.
Zu den Räumlichkeiten. gehören 2 KFZ-Außenstellplätze, Evtl. können auf dem Grundstück weitere Stellplätze zur Verfügung gestellt werden. Ebenso besteht die Möglichkeit in der ca. 100 m entfernten TG Marktplatz zu parken.
Lagebeschreibung:
Diese Gewerberäume befinden sich im Stadtzentrum Göppingens an der Kreuzung Burgstraße/Marktstraße/Friedrich-Ebert-Straße.
Göppingen ist eine Große Kreisstadt mit 59.053 Einwohnern und die größte Stadt des Landkreises Göppingen. Sie verfügt über eine gute Infrastruktur mit vielfältigen Einkaufsmöglichkeiten, Cafés und Restaurants, die fußläufig erreichbar sind. Weiterhin zeichnet sich Göppingen durch zahlreiche kulturelle und sportliche Veranstaltungen sowie umfassende Bildungs- und Betreuungsangebote aus.
Entfernungen:
Bahnhof: ca. 650 m
B10: ca. 1,8 km
A8: 18 km
Stuttgart Zentrum: ca. 45 km
Esslingen Zentrum: ca 31 km
Flughafen Stuttgart:: ca. 40 km
Schorndorf: ca. 19 km
Schwäbisch Gmünd: ca. 23 km
Geislingen: ca. 18 km
Ulm: ca. 49 km
Sonstiges:
Bitte haben Sie Verständnis, dass nur Anfragen mit vollständiger Adress- und Telefonnummernangabe bearbeitet werden können.











































